Căn hộ chung cư là một trong nhưng mô hình sống rất được ưa chuộng hiện nay tại các thành phố lớn. Vinhomes Smart City là một trong những siêu dự án của Tập đoàn Vingroup được coi là một trong những địa điểm đáng sống nhất hiện này. Sở hữu căn hộ 3 phòng ngủ với diện tích 80m2, chị Nga là một người yêu thích sự hiện đại, nhẹ nhàng, tinh tế đã tìm đến với Sofia Việt với mong muốn hoàn thiện không gian sống trở nên hoàn hảo.

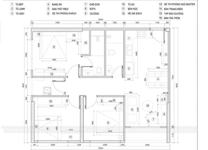
Thiết kế nội thất chung cư 3 phòng ngủ tại Vinhomes Smart City
Các KTS của Sofia Việt đã thiết kế căn hộ 3 phòng ngủ tại chung cư Vinhomes Smart City của chị Nga theo phong cách hiện đại, trẻ trung và thanh lịch đem đến một cảm giác tươi mới khi bước vào.
Nội dung bài viết
Thiết kế phòng khách mở tối ưu hóa không gian
Bước chân vào căn nhà, ấn tượng đầu tiên mà Sofia Việt muốn mang đến là một không gian thoáng đãng, rộng mở vì đây là địa điểm quan trọng nhất trong nhà vừa là nơi tiếp khách ghi lại những ấn tượng khó phai vùa là khu sinh hoạt chung của gia đình. Ánh sáng tự nhiên là điều không thể thiếu để làm tăng vẻ đẹp, độ thông thoáng cho căn phòng. KTS của Sofia Việt đã thiết kế một của kính lớn để đón ánh sáng tự nhiên giúp phòng khách của gia đình chị Nga luôn tràn đầy năng lượng và trở nên sinh động hơn.

Phòng khách sang trọng và tinh tế
Xem thêm>> Lên ý tưởng thiết kế nội thất chung cư Vinhomes West Point đẹp lý tưởng
Tone màu chủ đạo là màu trắng kết hợp với các vật dụng nội thất có gam màu trung tinh mang dáng vẻ hiện đại nhưng không hề đơn điệu. Căn phòng luôn khiến bạn cảm thấy ấn tượng vì độ thời thường từ những vật dụng bài trí đơn giản, gọn gàng, màu sắc trang nhã, tinh tế. Để làm điểm nhấn cho không gian, KTS Sofia Việt đã thiết kế một bộ ghế sofa nhỏ nhắn kết hợp cùng tivi treo tường để phù hợp với diện tích cũng như giúp không gian luôn gọn gàng, sang trọng

Phòng bến với đầy đủ công năng luôn ngăn nắp và gọn gàng
Phòng bếp với đầy đủ công năng
Thiết kế khu vực bếp hiện đại đáp ứng đầy đủ công năng sử dụng của gia đình với tủ bếp hình chữ L có kích thước cân đối với không gian. Các thiết kế chỗ để tủ lạnh, lò nướng, lò vi sóng, hút mùi được bố trí âm tường giúp tiết kiệm không gian và giúp phòng bép luôn ngăn nắp và sạch sẽ hơn.

Mẫu thiết kế phòng ngủ trong căn hộ nhà chị Nga
Thiết kế phòng ngủ là nơi nghỉ ngơi, thư giãn hoàn hảo
Với thiết kế căn hộ 3 phòng ngủ đáp ứng được tối đa nhu cầu sử dụng của gia đình 4 thành viên, KTS Sofia Việt đã tư vấn cho chị Nga thiết kế các không gian đơn giản, nhẹ nhàng và tạo ra sự thoải mái giúp việc nghỉ ngơi, thư giãn của gia chủ luôn được đảm bảo. Vì vậy, phòng ngủ được thiết kế sao cho đơn giản nhất có thể bằng việc thiết kế kệ tivi treo tường vừa tiện lợi vừa tiết kiệm không gian. Thiết kế cửa đón nắng để đảm bảo không gian luôn đầy đủ ánh sáng và không bị tối. Các thiết kế đèn trong phòng cũng lựa chọn những gam màu dịu nhẹ để gia chủ dễ dàng nghỉ ngơi.

Mẫu phòng ngủ cho con
Thiết kế phòng ngủ cho con mang những đặc điểm phù hợp với lứa tuổi, giới tính cùng việc tính hợp giữa không gian nghỉ ngơi lẫn không gian học tập tạo nên một căn phòng đầy sinh động khiến bé cảm thấy thích thú.
Sofia Việt – địa chỉ tin cậy giúp bạn có những không gian sống hoàn hảo
Tại căn hộ 80m2 nhà chị Nga với thiết kế 3 phòng ngủ đã được KTS của Sofia Việt thổi hồi bằng những đường nét đơn giản, không quá cầu kỳ những vẫn đảm bảo được sự sang trọng, thời thượng và hiện đại. Các thiết kế tủ đều kịch trần vừa mang tính thẩm mĩ cao lại vừa tận dụng không gian giúp gia chủ lưu trữ đồ đạc được thuận tiện hơn. Chất liệu gỗ mà Sofia Việt lựa chọn là những gam màu đơn giản, nhẹ nhàng phù hợp và dễ dàng cho việc lựa chọn nội thất vừa không tạo cảm giác nhàm chán.

Dịch vụ thiết kế tại Sofia Việt khiến bạn cảm thấy hài lòng và yên tâm
Hi vọng với mẫu thiết kế thi công nội thất 3 phòng ngủ tại căn hộ chung cư Vinhomes Smart City của chị Nga mà chúng tôi vừa chia sẻ sẽ giúp quý khách có thêm nhiều gợi ý cho không gian sống của gia đình. Hoặc bạn có thể liên hệ với Sofia Việt qua số điện thoại 0356.996.666 hoặc truy cập website: https://sofiaviet.com/ để được nghe tư vấn thiết kế cùng các dịch vụ hoàn hảo, chắc chắn sẽ làm bạn hài lòng.
- Phong thủy cầu thang và những lưu ý quan trọng khi thực hiện
- Đặc điểm trong thiết kế nhà phong cách Nhật
- Top 5 ý tưởng thiết kế phòng giặt đồ hiện đại dành cho gia đình bạn
- Mẹo decor phòng ngủ đơn giản, tiết kiệm diện tích phòng
- Khám phá những đặc trưng nổi bật của phong cách nội thất Urban
- Khám phá đặc điểm các phong cách kiến trúc phổ biến nhất
- Móng băng và những thông tin chi tiết có liên quan bạn nhất định cần biết
- Tham khảo biện pháp thi công đài móng đúng tiêu chuẩn
- Top 10 đồ trang trí phòng ngủ cho không gian của bạn
- Trần giả là gì? Có nên làm trần giả hay không?
- Cách tính hướng giường ngủ khi thi công xây dựng chuẩn phong thủy
- Lựa chọn mẫu vách ngăn nhà vệ sinh nào phù hợp công trình của bạn?
- Ngói lưu ly là gì? Ngói lưu ly có những loại nào?
- Gạch tàu lát sàn và những ưu điểm được ưa chuộng đầu tư
- Hướng nhà tuổi 1986 – Dịch vụ thiết kế nội thất phong thủy Sofia Việt
- Mẫu thiết kế nội thất phòng ngủ đẹp hiện đại 2021
- Hướng nhà tuổi 1986, hướng nhà sinh tài lộc cho gia chủ
- Những mẫu cửa sắt 4 cánh đẹp hiện đại giá rẻ 2022
- Tổng hợp mẫu cửa gỗ đẹp 4 cánh hiện đại sang trọng
- Tham khảo một số giải pháp thiết kế đèn phòng khách ấn tượng
- Tác dụng của nhà chống lũ là gì? Hiệu quả mang lại từ nhà chống lũ
- Vì sao nên sử dụng bàn học thông minh cho bé?
- Top 10 xu hướng nội thất thông minh đón đầu trào lưu năm 2022
- Phong cách minimalism và những điều nhất định phải biết
- Tìm hiểu tuổi 1963 hợp hướng nào để thi công nhà ở hiệu quả
- Xem ngay: Báo giá sửa nhà mới nhất 2023
- Xây Nhà Trọn Gói – Giải Pháp Toàn Diện Giúp Bạn Sở Hữu Tổ Ấm Mơ Ước
- Thiết kế nhà vát góc là gì? Kinh nghiệm thiết kế nhà 2 mặt tiền vát góc
- Những lưu ý khi hợp tác cùng dịch vụ thi công nội thất chung cư




